BEGEGNUNGSORT BREMEN WALLE
Der neue Begegnungsort Walle ist direkt am Bahnhof lokalisiert. Zwischen den Gleisen und der viel befahrenen, lärmbelasteten Waller Heerstraße entsteht ein Ort der Ruhe und des VerweilensWALLE FÜR ALLE?
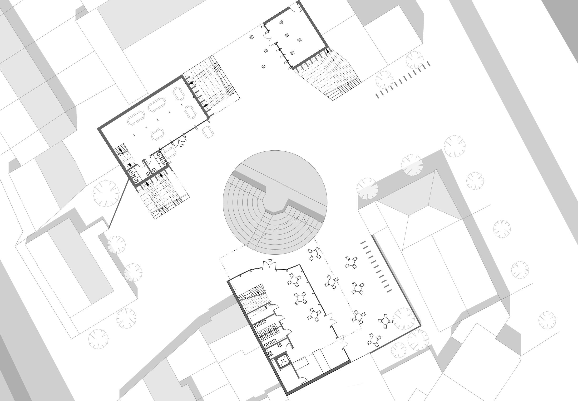
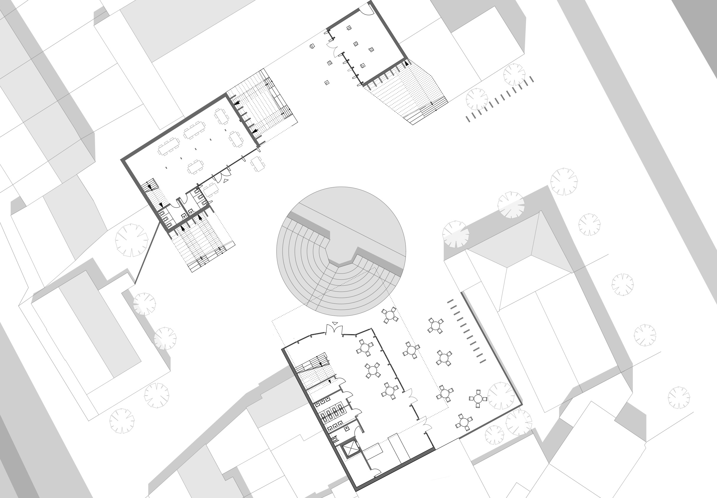
Die zentrale Architektur bildet eine Bibliothek, dessen Lern- und Aufenthaltsbereiche sich über den gesamten Platz erstrecken. Gegenüberliegend ein zweigeschossiges Gebäude, welches als Lernbereich oder für Workshops genutzt werden kann.
Anschließend an den Kristall Event Palast entsteht ein Ausstellungsraum, welcher als Verbindungsglied, aber auch als eigenständiger Ort für Ausstellungen und Veranstaltungen funktioniert. Zentral im Platz gelegen befindet sich ein Amphitheater, welches als Ergänzung des bereits bestehenden Event Palastes dient, aber auch bei Veranstaltungspausen als Sitz- und Lesebereich verwendet werden kann.
Die Kubatur der Bibliothek ergibt sich aus zwei verschobenen, aufeinander liegenden Büchern. Das Amphitheater bildet das Zentrum des Platzes und lässt sich je nach Anlass in seiner Ausrichtung rotieren, sodass eine flexible Nutzung möglich ist. Die runde Form findet sich in dem Untergeschoss der Bibliothek wieder.
MATERIAL & FUNKTION
Die Fassaden der Gebäude sind als Pfosten-Riegel-Fassaden konstruiert, sodass sich die einzelnen Gebäude zum Platz hin öffnen. Um die Aufmerksamkeit der Passanten zu erregen, wird das Bibliotheksgebäude in den Platz gerückt und gelangt ins Sichtfeld. Die Fassade der Gebäude wird mit rot eingefärbten Stahl verkleidet, um den Platz lebendiger wirken zu lassen.
Um den Platz und das Amphitheater aus verschiedenen Perspektiven betrachten zu können, sind die Dächer des Ausstellungsraumes und des Lernge-bäudes begehbar. Die Blickbeziehungen zwischen den einzelnen Orten des Platzes finden sich auch im Innenraum der Gebäude wieder. Gleichzeitig können die hochführenden Treppen als Sitzgelegenheit funktionieren. Der darunter entstehende Platz dient als Abstellmöglichkeit für Fahrräder.
Das Ausstellungsgebäude wird durch eine Tür mit dem Eventpalast verbunden. Bei Veranstaltungen kann der Raum als Materialllager genutzt werden. Die offene Fassade ermöglicht es Ausstellungen den Innen- sowie den Außenraum zu bespielen. Die Lamellen sind beweglich und können je nach Bedarf geöffnet oder geschlossen werden, sodass eine Lein-wand für Beamervorstellungen entsteht.







